×
Savoya Savoya Development

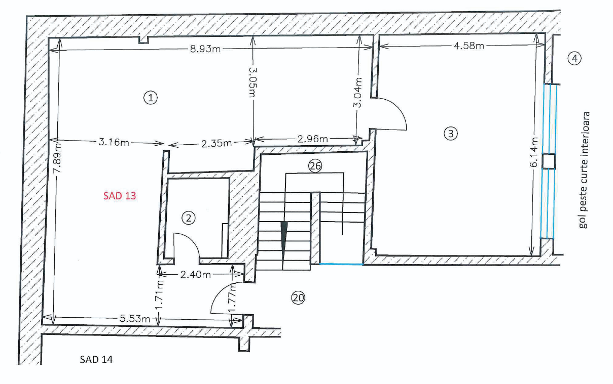
SAD 13 – Spațiu de birouri de închiriat în centrul Timișoarei – Mansardă – 80,1 mp

Spațiu birouri de închiriat Timișoara centru, mansardă, 80,1 mp

Florimund Mercy 1 · Mansarda

De închiriat Birou
Preț
961
Suprafață utilă
80,10 mp
Suprafață construită
80,10 mp

Spațiu de birouri situat la nivel de mansardă, în centrul Timișoarei, cu o suprafață utilă de 80,1 mp. Compartimentarea include două încăperi generoase și grup sanitar, oferind un spațiu versatil pentru activități de birou, servicii sau activități creative. Configurația mansardată oferă un ambient distinct și un plus de caracter, ideal pentru echipe care caută un spațiu de lucru diferit, într-o zonă centrală.

Spațiu birouri SAD 13 mansardă Timișoara centru vedere generală

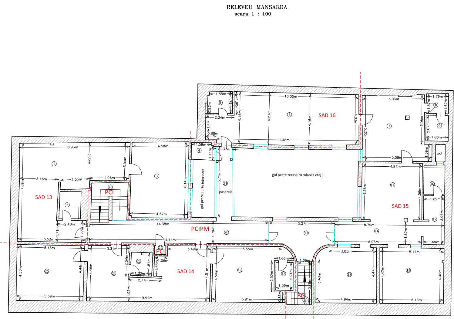
Plan imobil

Plan compartimentare SAD 13 mansardă spațiu birouri 80,1 mp

Plan etaj

Plan mansardă clădire spații birouri Timișoara SAD 13 14