×
Savoya Savoya Development

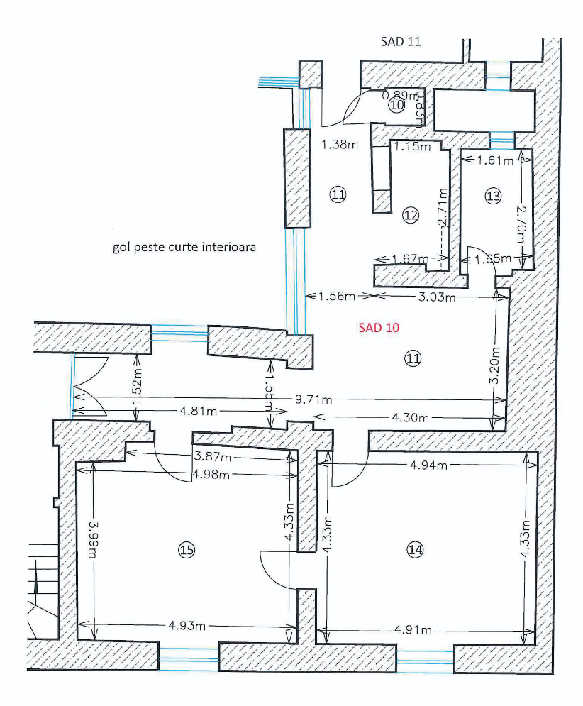
SAD 10 – Spațiu de birouri de închiriat în centrul Timișoarei – Etaj 2 – 81,9 mp

Spațiu birouri de închiriat Timișoara centru, etaj 2, 81,9 mp

Florimund Mercy 1 · Etaj 2

De închiriat Birou
Preț
982
Suprafață utilă
81,90 mp
Suprafață construită
81,90 mp

Spațiu de birouri spațios, situat la etajul 2 al unei clădiri din centrul Timișoarei, cu o suprafață utilă de 81,9 mp. Compartimentarea include mai multe încăperi de lucru, hol generos, chicinetă, grup sanitar și spațiu tehnic, oferind funcționalitate ridicată pentru activități de birou, firme IT sau servicii profesionale. Distribuția permite organizarea eficientă a echipelor și delimitarea zonelor de lucru.

Spațiu birouri SAD 10 etaj 2 Timișoara centru vedere generală

Plan imobil

Plan compartimentare SAD 10 etaj 2 spațiu birouri 81,9 mp

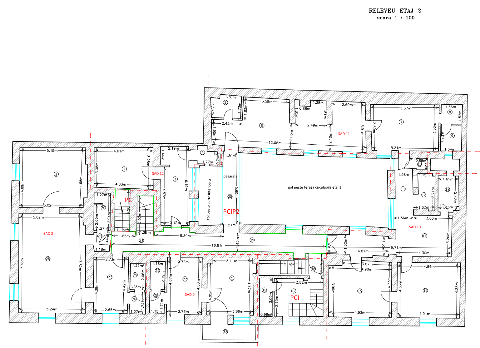
Plan etaj

Plan etaj 2 clădire spații birouri Timișoara SAD 8 9 10 11 12