×
Savoya Savoya Development

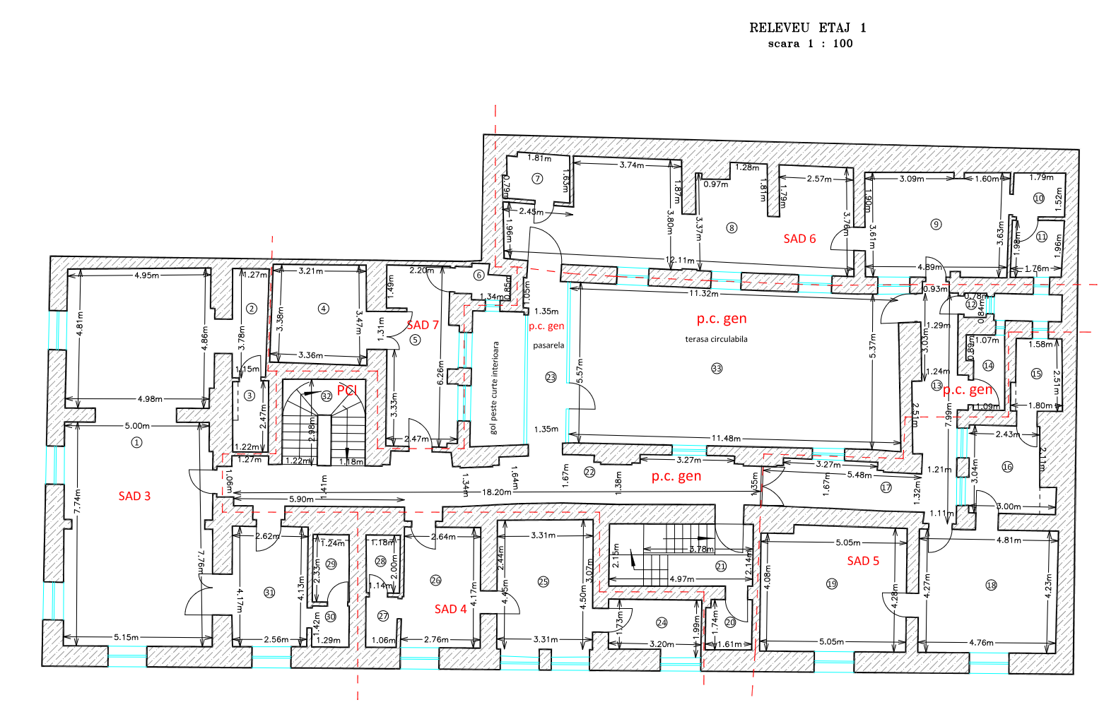
SAD 6 – Spațiu de birouri de închiriat în centrul Timișoarei – Etaj 1 – 66,7 mp

Spațiu birouri de închiriat Timișoara centru, etaj 1, 66,7 mp

Florimund Mercy 1

De închiriat Birou
Preț
800
Suprafață utilă
66,70 mp
Suprafață construită
66,70 mp

Spațiu de birouri situat la etajul 1 al unei clădiri din centrul Timișoarei, cu o suprafață utilă de 66,7 mp. Compartimentarea include două încăperi principale, chicinetă și grupuri sanitare, fiind potrivit pentru activități de birou, servicii sau consultanță. Spațiul beneficiază de acces facil și de lumină naturală, oferind un mediu de lucru confortabil și eficient pentru echipe mici sau medii.

Spațiu birouri SAD 6 etaj 1 Timișoara centru vedere generală

Plan imobil

Plan compartimentare SAD 6 etaj 1 spațiu birouri 66,7 mp

Plan etaj

Plan etaj 1 clădire spații birouri Timișoara SAD 3 4 5 6 7