×
Savoya Savoya Development

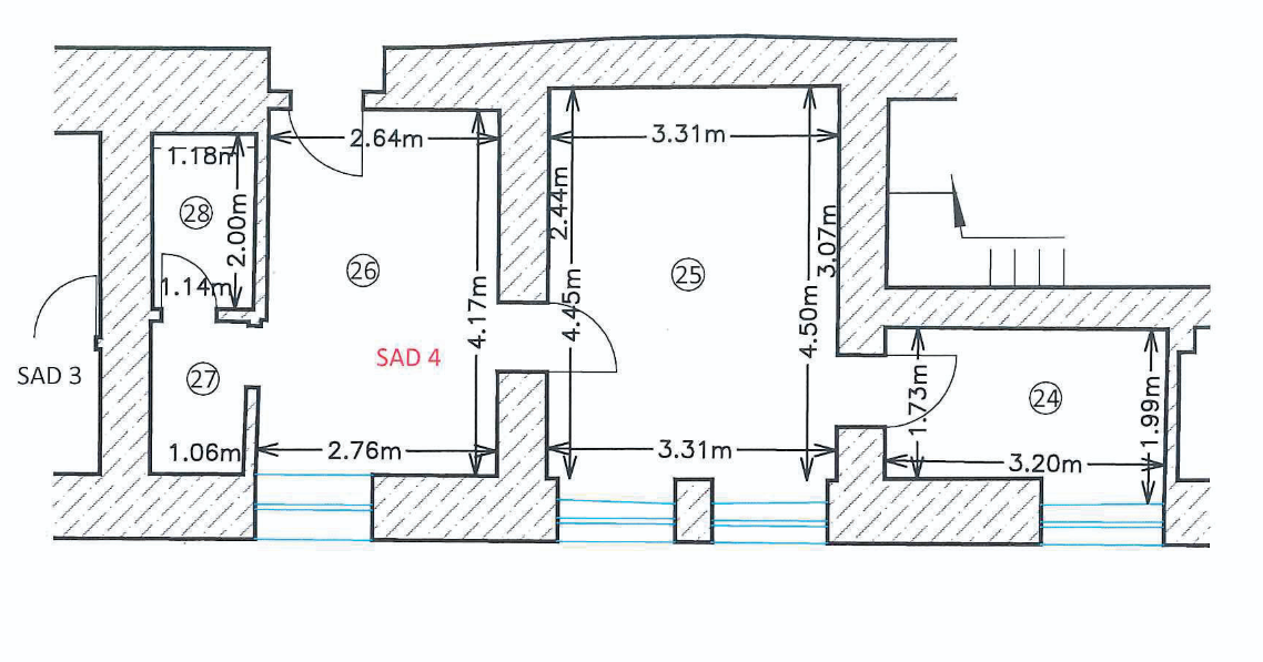
SAD 4 – Spațiu de birouri de închiriat în centrul Timișoarei – Etaj 1 – 36,8 mp

Spațiu birouri de închiriat Timișoara centru, etaj 1, 36,8 mp

Florimund Mercy 1 · Etaj 1

De închiriat Birou
Preț
441
Suprafață utilă
36,80 mp
Suprafață construită
36,80 mp

Spațiu de birouri compact, situat la etajul 1 al unei clădiri din centrul Timișoarei, cu o suprafață utilă de 36,8 mp. Compartimentarea include trei încăperi funcționale, chicinetă și grup sanitar propriu, fiind ideal pentru activități de birou, consultanță sau servicii profesionale. Poziționarea la etaj oferă un plus de intimitate și un mediu de lucru liniștit, potrivit pentru echipe mici sau activități administrative.

Spațiu birouri SAD 4 etaj 1 Timișoara centru vedere generală

Plan imobil

Plan compartimentare SAD 4 etaj 1 spațiu birouri 36,8 mp

Plan etaj

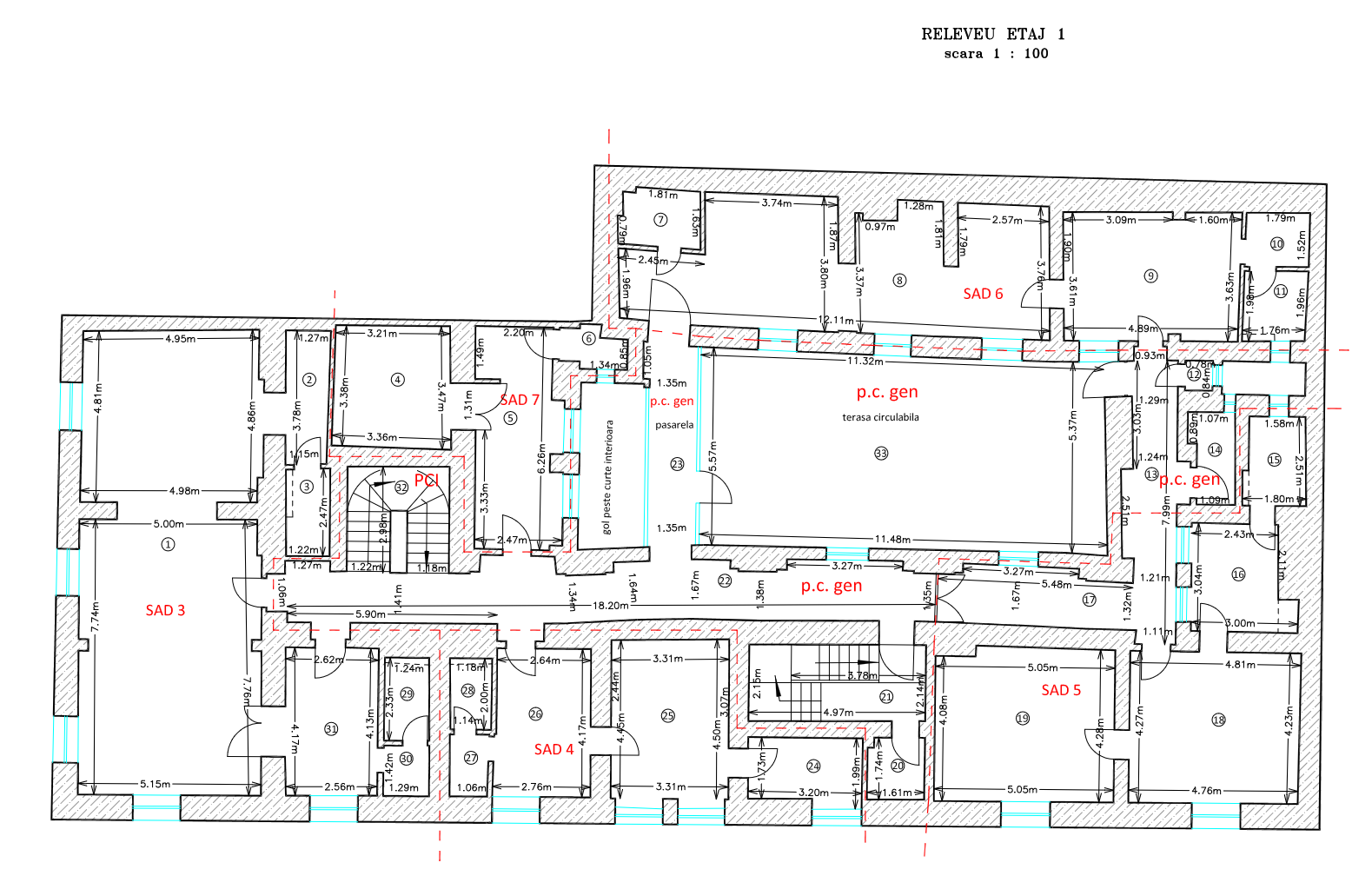
Plan etaj 1 clădire spații birouri Timișoara SAD 3 4 5 6 7