×
Savoya Savoya Development

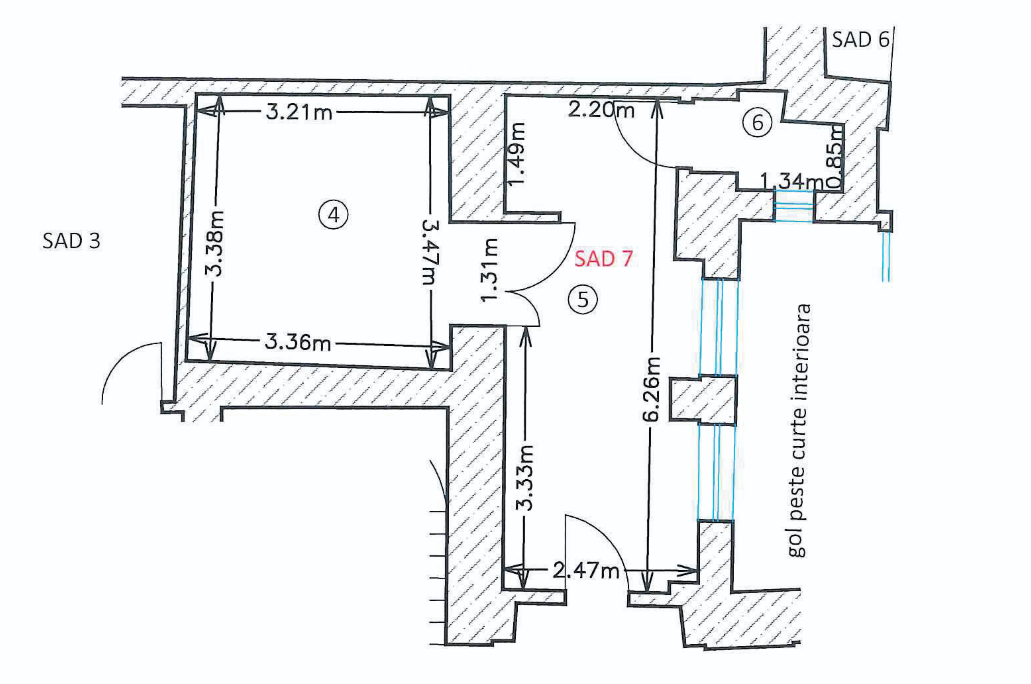
SAD 7 – Spațiu de birouri de închiriat în centrul Timișoarei – Etaj 1 – 27,7 m

Spațiu birouri de închiriat Timișoara centru, etaj 1, 27,7 mp

Florimund Mercy 1 · Etaj 1

De închiriat Birou
Preț
332
Suprafață utilă
27,70 mp
Suprafață construită
27,70 mp

Spațiu de birouri compact, situat la etajul 1 al unei clădiri din centrul Timișoarei, cu o suprafață utilă de 27,7 mp. Compartimentarea include două încăperi și grup sanitar, fiind ideal pentru activități de birou, consultanță sau activități independente. Spațiul oferă un mediu de lucru eficient și intim, potrivit pentru freelanceri sau echipe restrânse.

Spațiu birouri SAD 7 etaj 1 Timișoara centru vedere generală

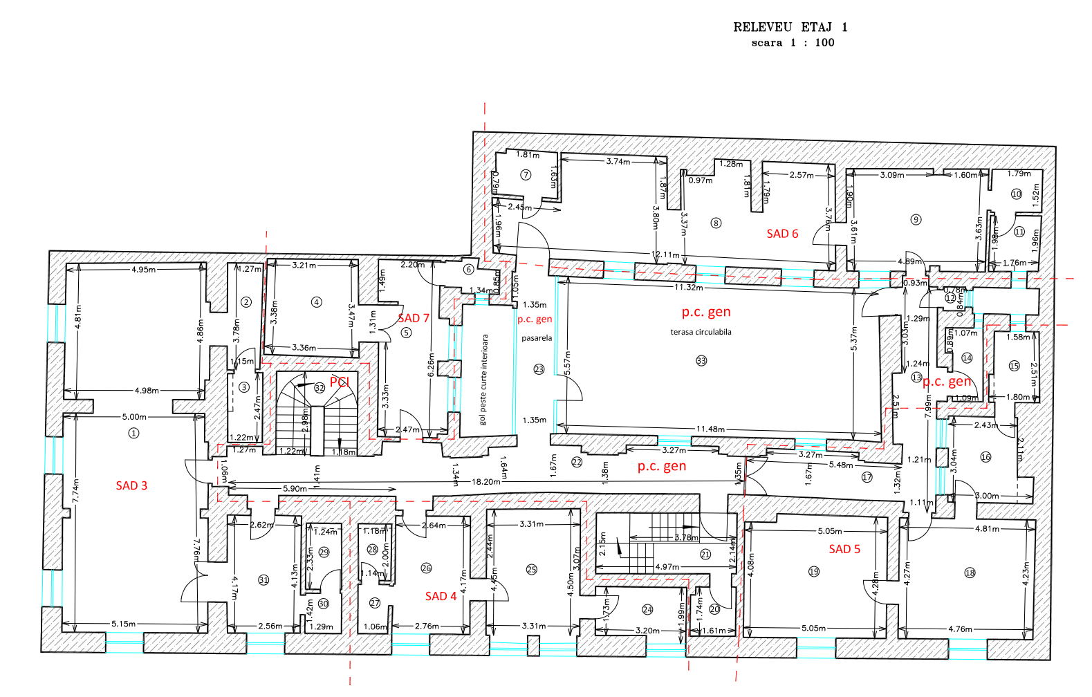
Plan imobil

Plan compartimentare SAD 7 etaj 1 spațiu birouri 27,7 mp

Plan etaj

Plan etaj 1 clădire spații birouri Timișoara SAD 3 4 5 6 7