×
Savoya Savoya Development

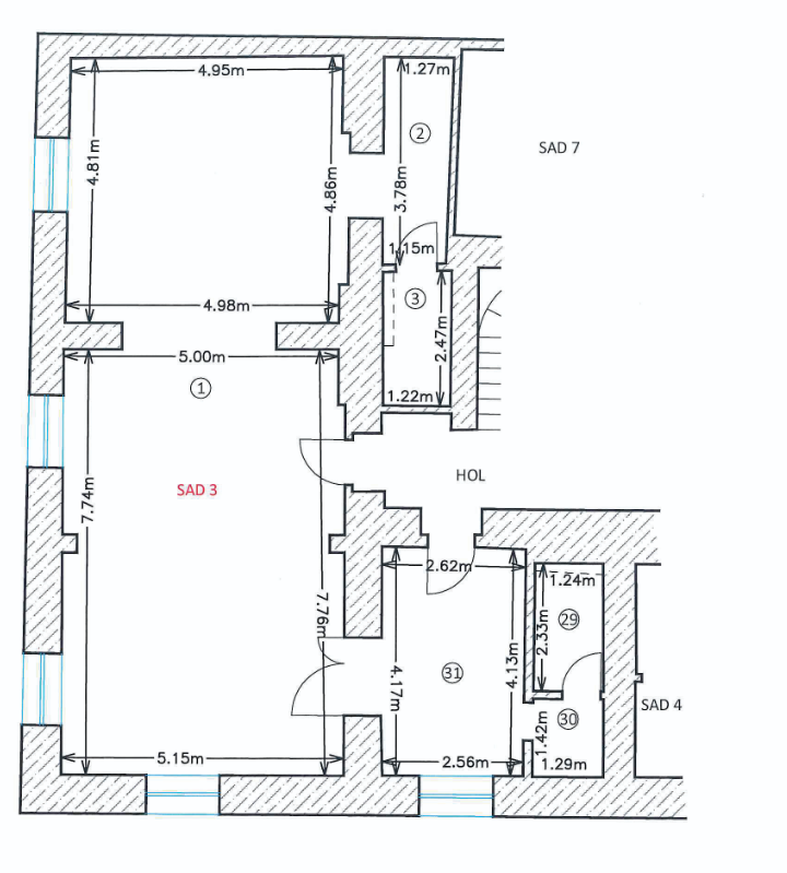
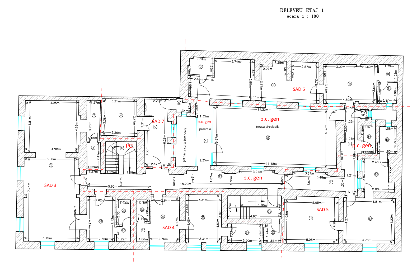
SAD 3 – Spațiu de birouri de închiriat în centrul Timișoarei – 88,4 mp

Spațiu birouri de închiriat Timișoara centru, 88,4 mp Etaj 1

Florimund Mercy 1 · Etaj 1

De închiriat Birou
Preț
1.060
Suprafață utilă
88,40 mp
Suprafață construită
88,40 mp

Spațiu de birouri compact și eficient, situat în centrul Timișoarei, cu o suprafață utilă de 88,4 mp. Proprietatea este compartimentată în două încăperi principale, completate de chicinetă și grupuri sanitare, fiind potrivită pentru activități de birou, consultanță sau servicii profesionale. Accesul se face din hol comun, iar distribuția permite organizarea clară a zonelor de lucru și întâlnire.

Spațiu birouri SAD 3 Timișoara centru vedere generală

Plan imobil

Plan compartimentare SAD 3 spațiu birouri 88,4 mp

Plan etaj

Plan etaj SAD 3 spațiu birouri Timișoara