×
Savoya Savoya Development

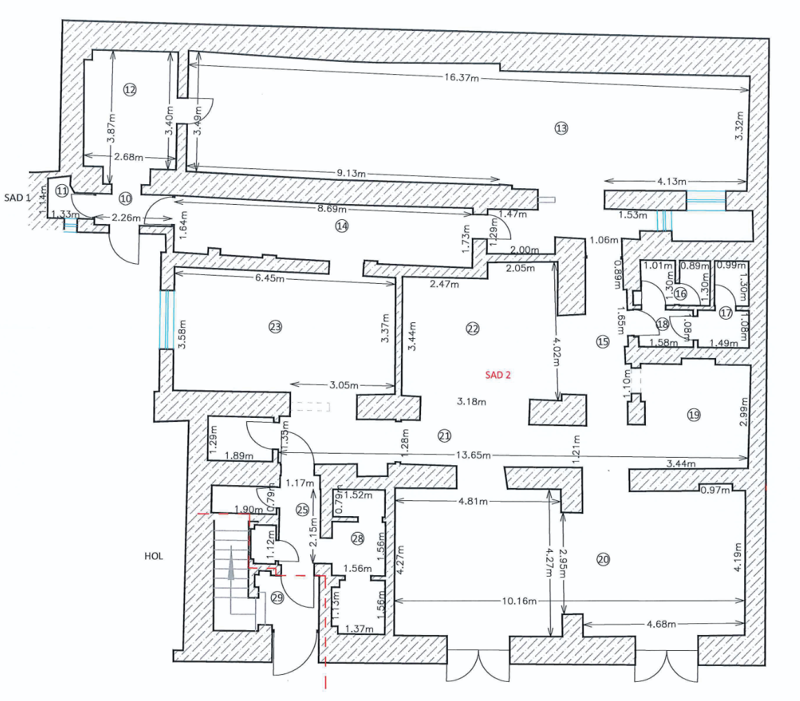
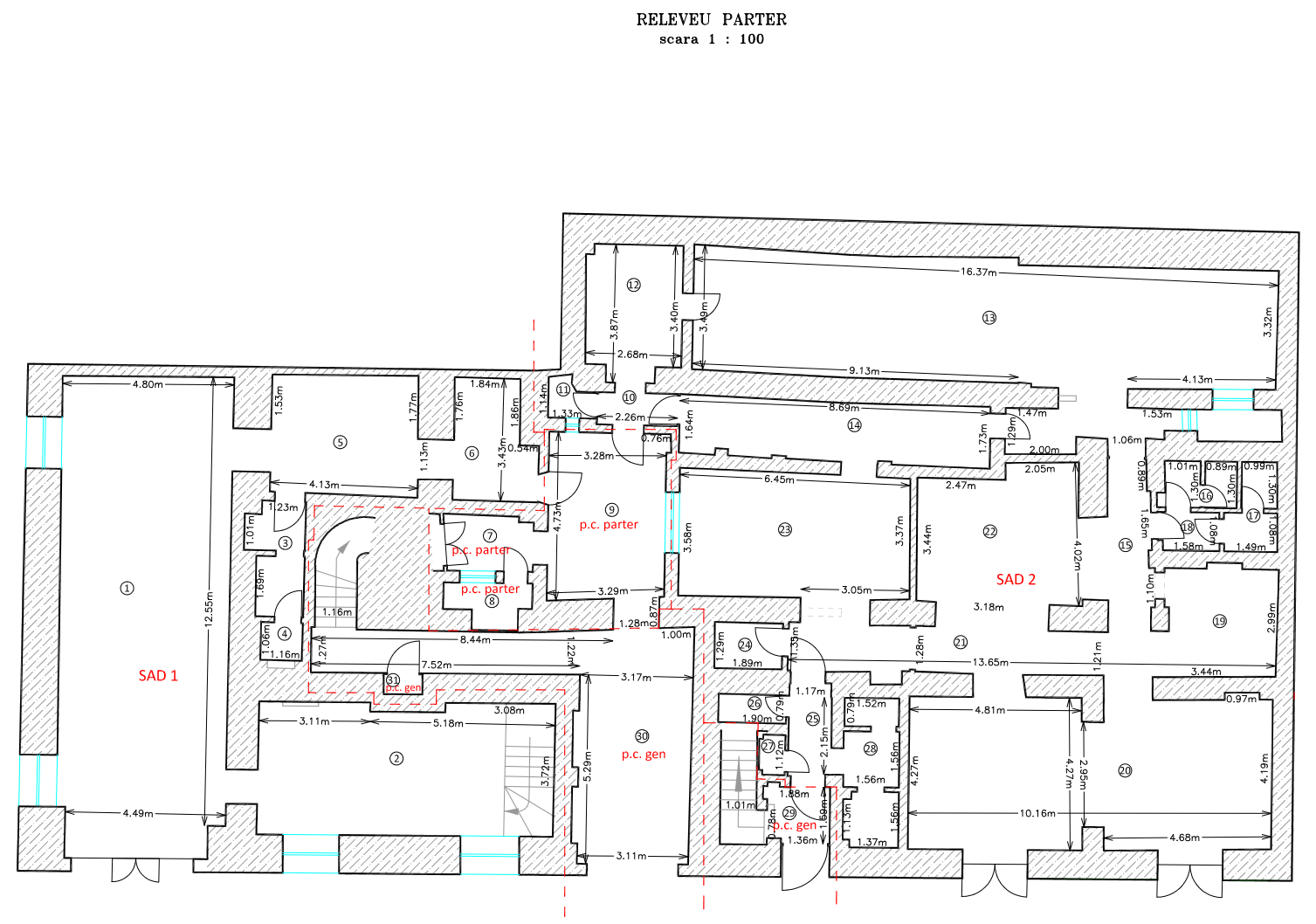
SAD 2 – Spațiu de birouri de închiriat în centrul Timișoarei – 230,7 mp

Spațiu birouri de închiriat Timișoara centru, 230,7 mp parter

Florimund Mercy 1 · Parter

De închiriat Birou
Preț
2.768
Suprafață utilă
230,70 mp
Suprafață construită
230,70 mp

Spațiu de birouri generos, situat în zona centrală a Timișoarei, cu o suprafață utilă totală de 230,7 mp. Proprietatea este compartimentată eficient și include multiple încăperi de lucru, holuri de acces, grupuri sanitare și spații tehnice, fiind ideală pentru activități de birou, firmă IT, servicii sau sediu de companie. Accesul este facil, iar distribuția spațiului permite organizarea flexibilă a echipelor și departamentelor.

Spațiu birouri SAD 2 Timișoara centru vedere generală

Plan imobil

Plan compartimentare SAD 2 spațiu birouri 230,7 mp

Plan etaj

Plan etaj SAD 2 spațiu birouri Timișoara