×
Savoya Savoya Development

SAD 1 – Spațiu de birouri de închiriat în centrul Timișoarei – 208,5 mp

Spațiu birouri de închiriat Timișoara centru, 208,5 mp parter + subsol

Florimund Mercy 1 · Subsol + Parter

De închiriat Birou
Preț
2.502
Suprafață utilă
208,50 mp
Suprafață construită
208,50 mp

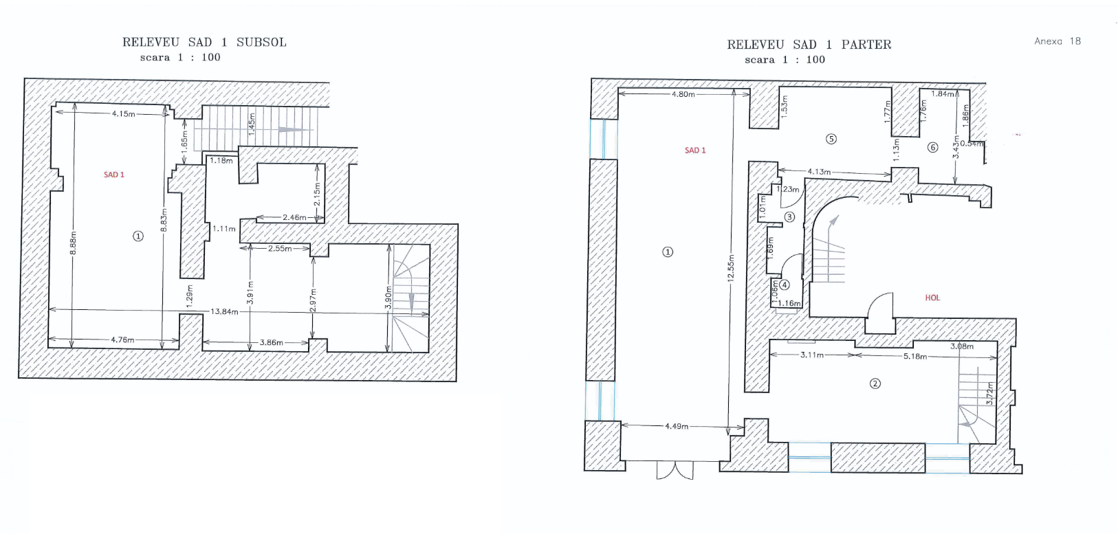
SAD 1 este un spațiu de birouri disponibil pentru închiriere în zona centrală a Timișoarei, pe Strada Florimund Mercy, cu o suprafață utilă totală de 208,5 mp, dispusă pe parter și subsol. Proprietatea beneficiază de o compartimentare eficientă, incluzând zone open-space, birouri individuale, hol de acces și grup sanitar, fiind potrivită pentru activități de birou, clinică, showroom sau servicii profesionale. Subsolul oferă spațiu suplimentar pentru depozitare sau extindere operațională. Locația centrală asigură acces facil și vizibilitate excelentă.

SAD 1 spațiu de birouri de închiriat Timișoara centru

Plan imobil

Plan SAD 1 spațiu birouri 208,5 mp parter și subsol Timișoara Florimund Mercy

Plan etaj

Plan SAD 1 spațiu birouri 208,5 mp parter Timișoara Florimund Mercy