×
Savoya Savoya Development

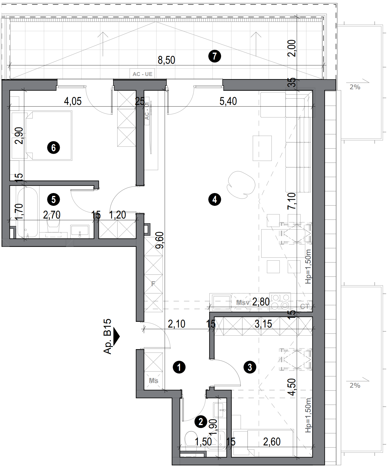
Apartament cu trei camere în Cartierul Freidorf

B15 - Apartament cu Trei Camere cu Balcon Mare

Mile Cărpenișan 8 · Corp B · Mansarda

De vânzare Apartament
Preț
167.190
Suprafață utilă
77,70 mp
Suprafață construită
89,10 mp
Terasă
20,10 mp
Lot
3

Apartament nou cu trei camere, două dormitoare separate, living spațios cu bucătărie open space și balcon mare poziționat pe latura stângă a apartamentului. Compartimentare modernă în Timișoara.

apartament cu trei camere cu balcon mare pe partea stângă

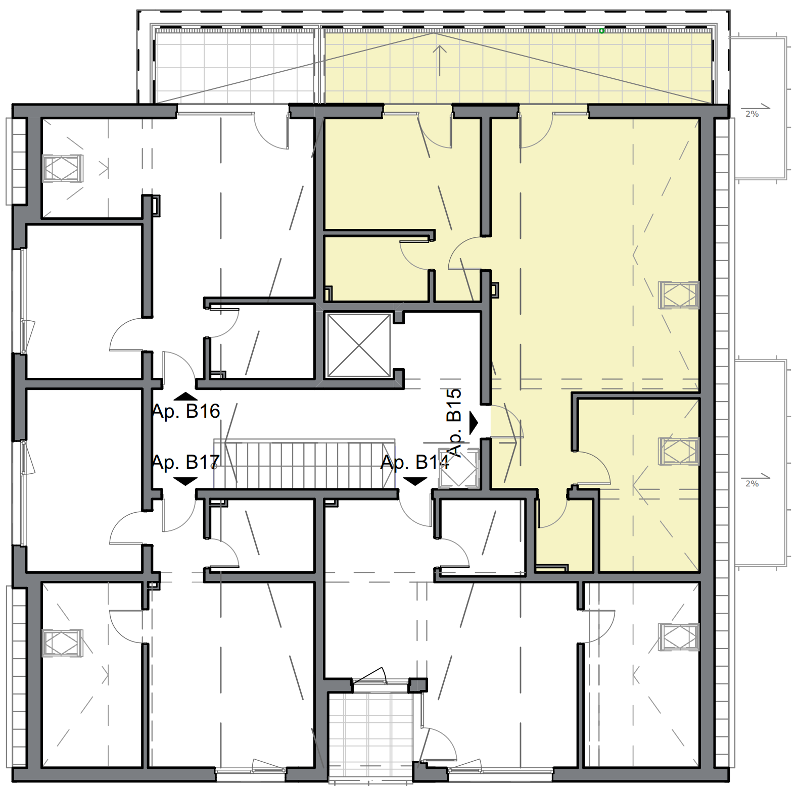
Plan imobil

plan apartament cu trei camere cu două dormitoare și balcon lateral

Plan etaj

schiță apartament cu trei camere cu living open space și balcon pe stânga