×
Savoya Savoya Development

Apartament cu două camere în Cartierul Freidorf

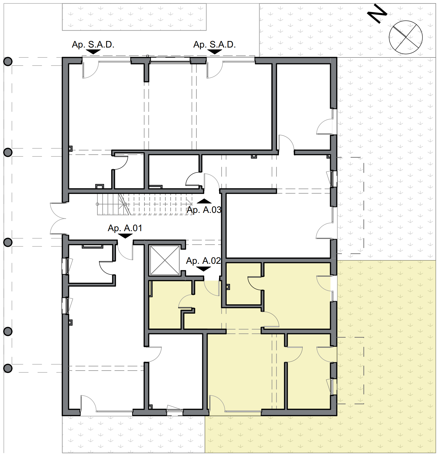
A02 - Apartament cu Două Camere și Grădină Mare – Compartimentare Decomandată

Mile Cărpenișan 8 · Corp A · Parter

De vânzare Apartament
Preț
135.580
Suprafață utilă
59,80 mp
Suprafață construită
71,70 mp
Grădină
85,90 mp
Lot
3

Apartament nou cu două camere, living spațios, bucătărie separată și dormitor matrimonial, cu acces direct la grădină generoasă. Compartimentare practică și spații bine optimizate în Timișoara.

apartament cu două camere cu living luminos și grădină mare

Plan imobil

plan apartament cu două camere cu bucătărie separată și baie

Plan etaj

schiță apartament cu două camere cu dormitor matrimonial și grădină privată