×
Savoya Savoya Development

Apartament cu două camere în Cartierul Freidorf

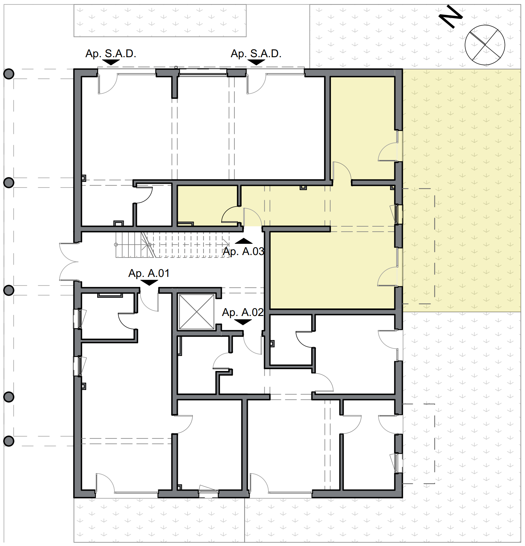
A03 - Apartament cu Două Camere și Grădină Extinsă – Spațiu Luminos

Mile Cărpenișan 8 · Corp A · Parter

De vânzare Apartament
Preț
124.870
Suprafață utilă
54,70 mp
Suprafață construită
65,20 mp
Grădină
62,00 mp
Lot
3

Apartament nou cu două camere, living deschis, bucătărie modernă și dormitor matrimonial, cu acces direct la grădină extinsă. Compartimentare eficientă și spații bine definite în Timișoara.

apartament cu două camere cu living deschis și grădină extinsă

Plan imobil

plan apartament cu două camere cu bucătărie și baie

Plan etaj

schiță apartament cu două camere cu dormitor și grădină privată mare