×
Savoya Savoya Development

Apartament cu două camere în Cartierul Freidorf

B10 - Apartament cu Două Camere și Balcon Mare – Living Spațios

Mile Cărpenișan 8 · Corp B · Etaj 2

De vânzare Apartament
Preț
102.820
Suprafață utilă
48,20 mp
Suprafață construită
64,50 mp
Terasă
8,00 mp
Lot
3

Apartament nou cu două camere, dormitor matrimonial, living spațios și bucătărie open space, cu acces la balcon mare. Compartimentare eficientă și finisaje moderne în Timișoara.

apartament cu două camere cu living spațios și balcon mare

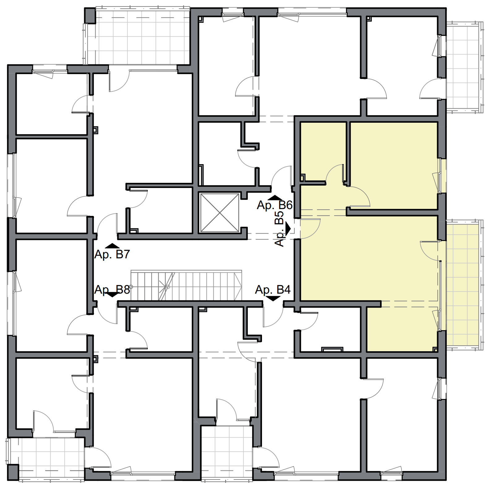
Plan imobil

plan apartament cu două camere cu bucătărie open space și baie

Plan etaj

schiță apartament cu două camere cu dormitor matrimonial și balcon mare