×
Savoya Savoya Development

Apartament cu două camere în Cartierul Freidorf

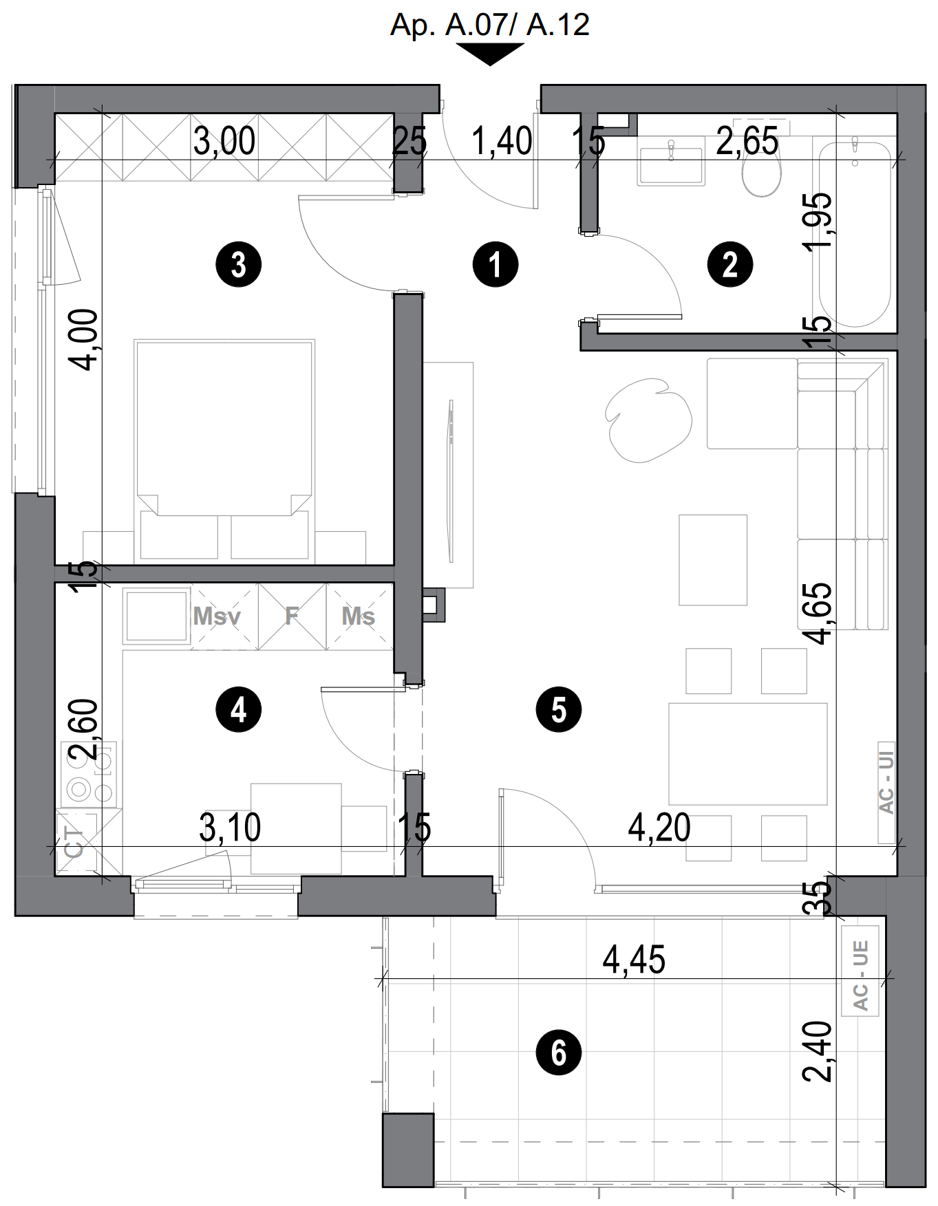
A07 - Apartament cu Două Camere și Balcon Mare – Living Generos

Mile Cărpenișan 8 · Corp A · Etaj 1

De vânzare Apartament
Preț
101.830
Suprafață utilă
47,50 mp
Suprafață construită
67,90 mp
Terasă
10,40 mp
Lot
3

Apartament nou cu două camere, dormitor matrimonial, living spațios și bucătărie separată, cu acces la balcon mare. Compartimentare eficientă și finisaje moderne în Timișoara.

apartament cu două camere cu living generos și balcon mare

Plan imobil

plan apartament cu două camere cu bucătărie separată și baie

Plan etaj

schiță apartament cu două camere cu dormitor matrimonial și balcon mare