×
Savoya Savoya Development

Apartament cu două camere în Cartierul Freidorf

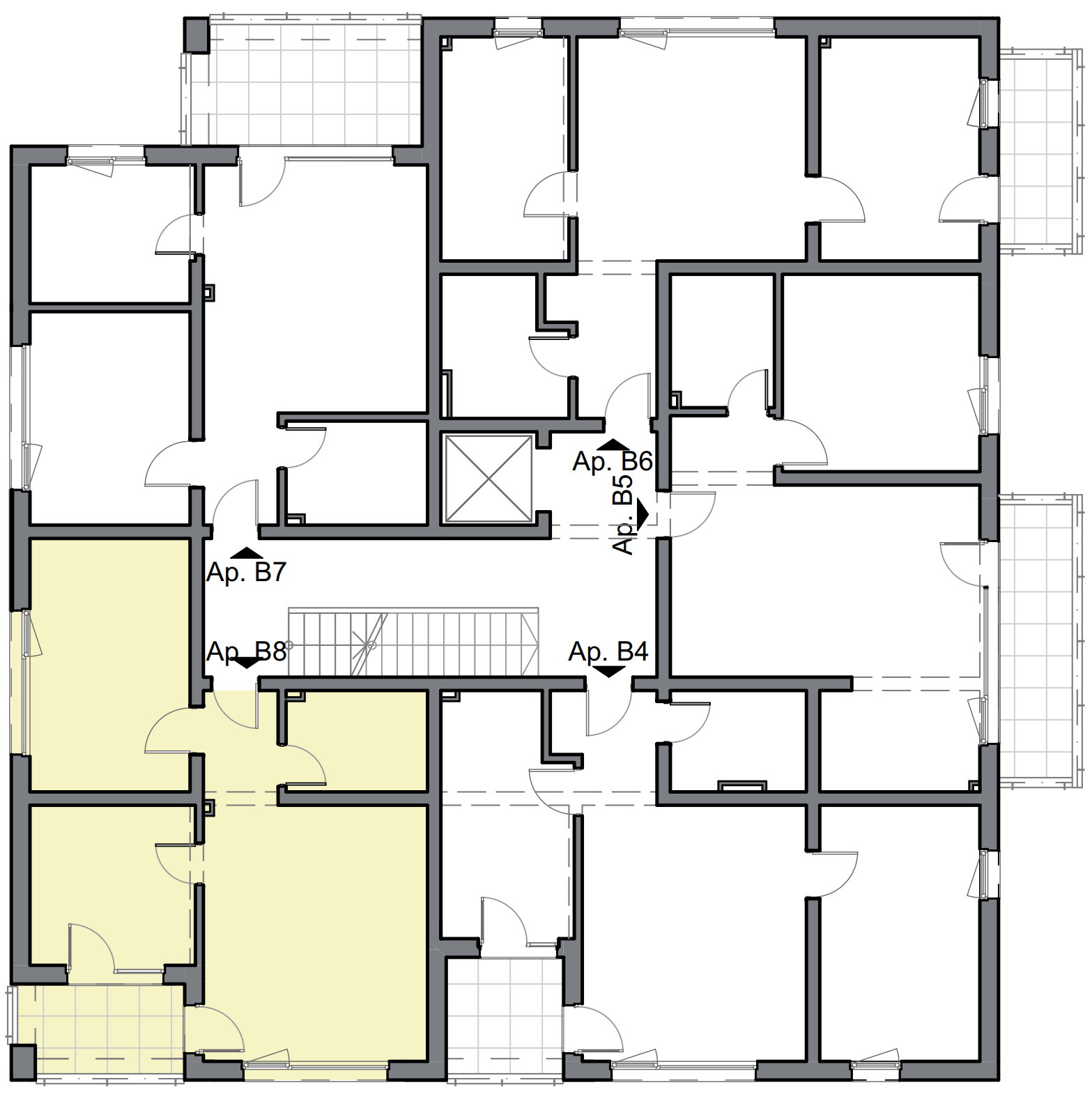
B08 - Apartament cu Două Camere și Balcon – Design Funcțional

Mile Cărpenișan 8 · Corp B · Etaj 1

De vânzare Apartament
Preț
109.480
Suprafață utilă
51,60 mp
Suprafață construită
68,80 mp
Terasă
5,60 mp
Lot
3

Apartament nou cu două camere, dormitor matrimonial, living confortabil și bucătărie separată, cu acces la balcon. Compartimentare practică și finisaje moderne în Timișoara.

apartament cu două camere cu living confortabil și balcon

Plan imobil

plan apartament cu două camere cu bucătărie separată și baie

Plan etaj

schiță apartament cu două camere cu dormitor matrimonial și balcon