×
Savoya Savoya Development

Apartament cu două camere cu grădină în Cartierul Freidorf

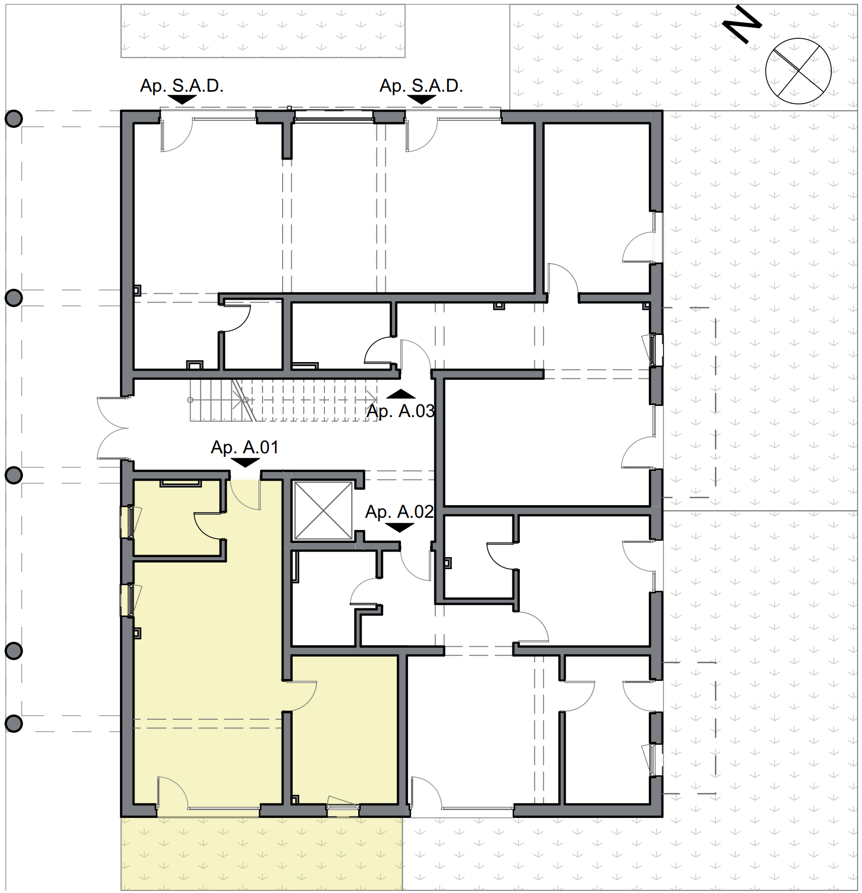
A01 - Apartament cu Două Camere cu Grădină și Living Open Space – Design Modern

Mile Cărpenișan 8 · Corp A · Parter

De vânzare Apartament
Preț
109.760
Suprafață utilă
50,00 mp
Suprafață construită
60,20 mp
Grădină
23,80 mp
Lot
3

Apartament nou cu două camere, living open space și grădină proprie, compartimentare eficientă și finisaje moderne. Ideal pentru locuire confortabilă într-o zonă liniștită din Timișoara.

apartament 2 camere cu grădină proprie, living open space și bucătărie modernă

Plan imobil

plan apartament 2 camere cu living open space, baie și dormitor matrimonial

Plan etaj

schiță apartament 2 camere cu terasă și grădină privată, compartimentare eficientă