×
Savoya Savoya Development

Apartament cu două camere în Cartierul Freidorf

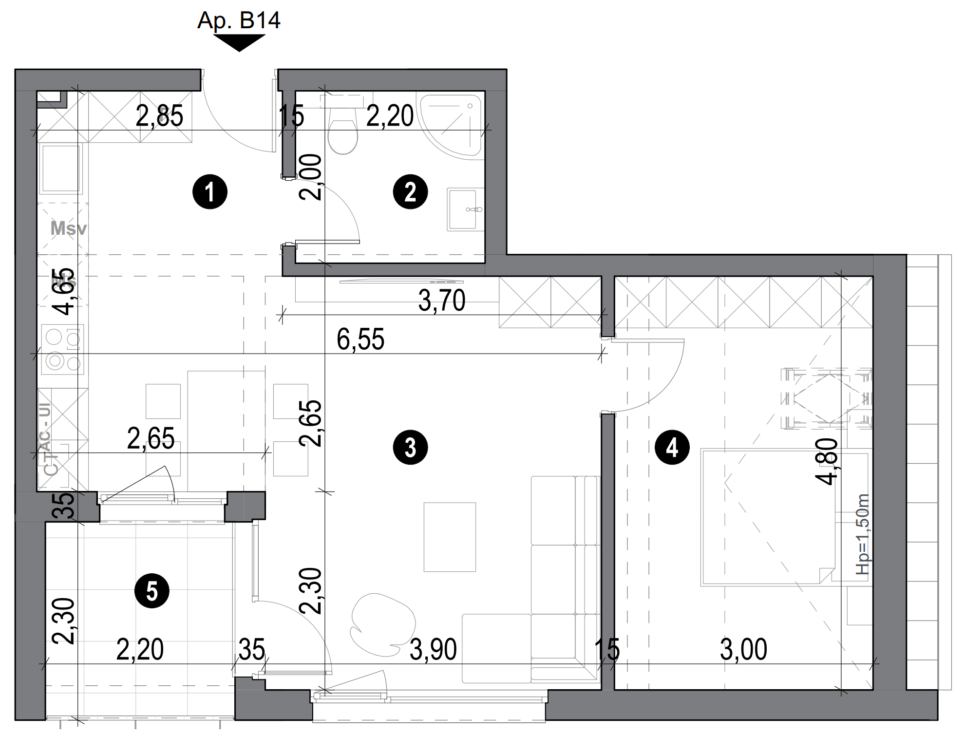
B14 - Apartament cu Două Camere cu Bucătărie Open Space și Balcon Mare

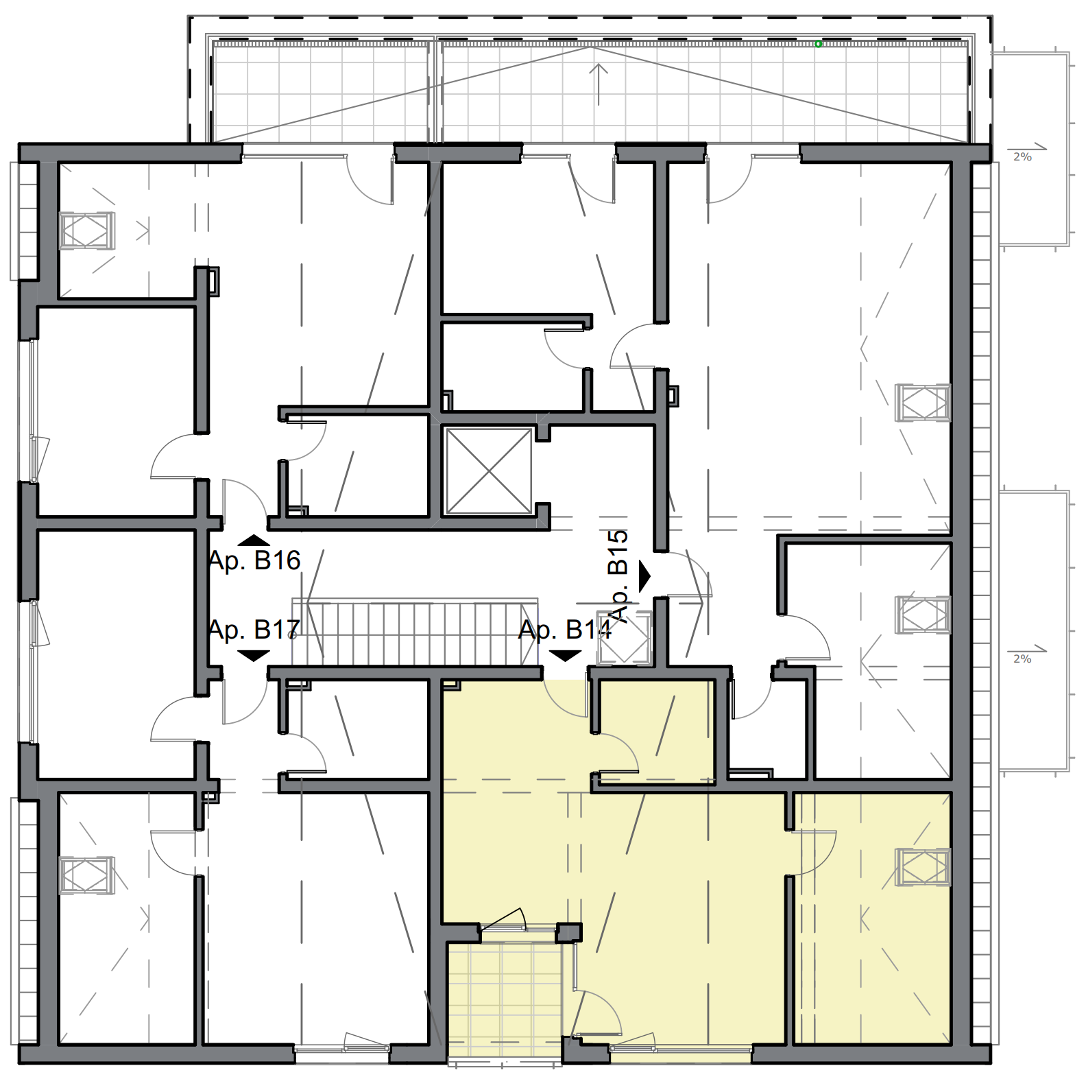
Mile Cărpenișan 8 · Corp B · Mansarda

De vânzare Apartament
Preț
106.630
Suprafață utilă
50,30 mp
Suprafață construită
64,20 mp
Terasă
5,00 mp
Lot
3

Apartament nou cu două camere, dormitor matrimonial luminos și living cu bucătărie open space, cu acces la balcon mare. Compartimentare modernă și eficientă, ideal pentru locuire sau investiție în Timișoara.

apartament cu două camere cu bucătărie open space și balcon mare

Plan imobil

plan apartament cu două camere cu living open space și balcon

Plan etaj

schiță apartament cu două camere cu dormitor matrimonial și living spațios